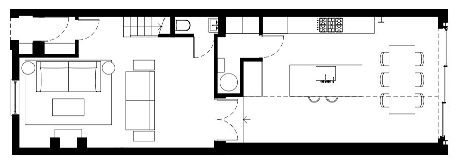
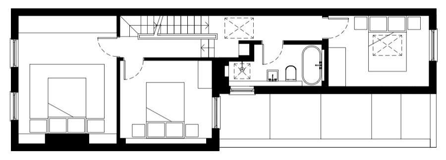
A late Victorian terraced house situated just off the Roman Road near East London’s Victoria Park. The house, located in a conservation area demanded a respectful approach to its renovation. DPE Architecture were approached by the clients who were looking to get the most out of the house and adapt it to fit in
with the needs of their ever-growing family. We remodeled the house, adding a side extension and mansard roof extension. This included designed a contemporary new stair extending up through the house, fitted joinery, glass roof, reclaimed flooring and much more. DPE Architecture completed full design services including contract administration and overseeing construction. The
project was a huge success with the clients very happy with their new family home.



























































